Affitto Commerciale (Attività Commerciale)

LOCALE COMMERCIALE IN AFFITTO NEL CENTRO DI RIVA

Rif. 1535

Riva del Garda

Trattativa riservata

244 mq

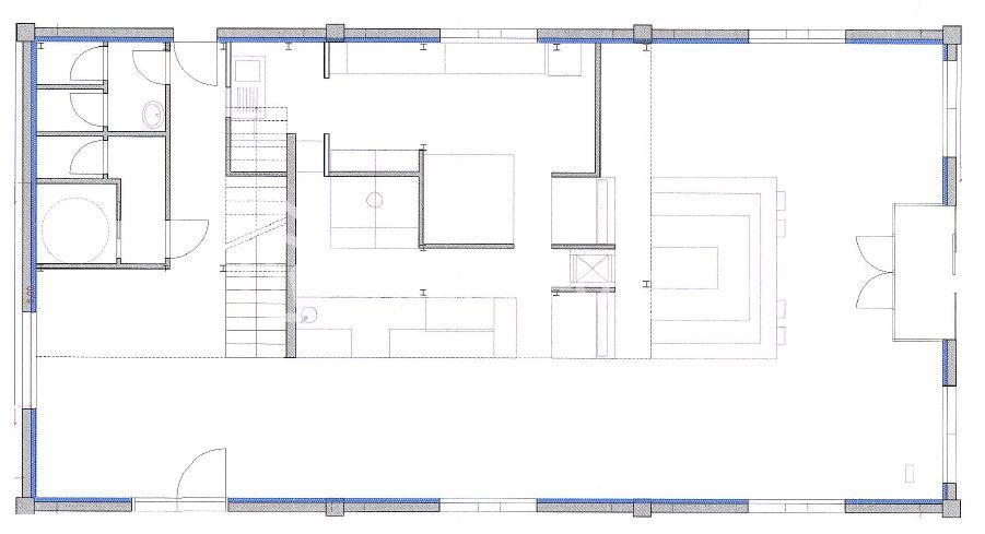
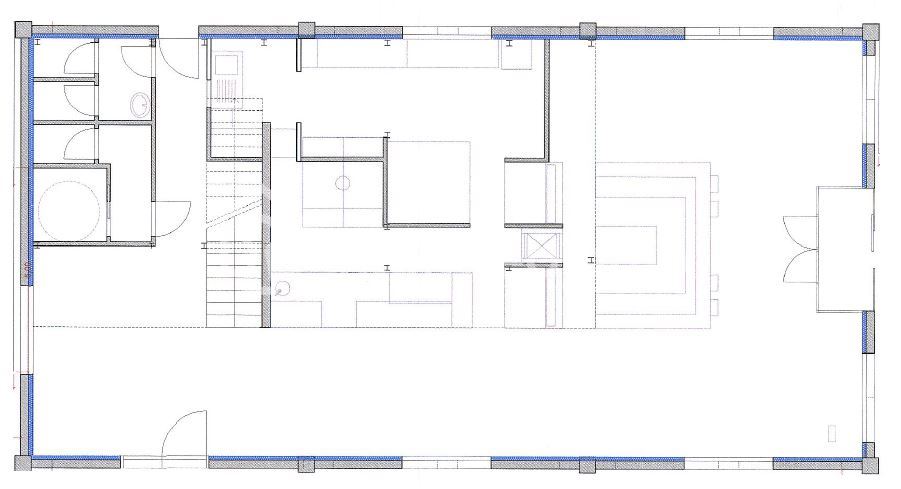
Planimetrie

Descrizione

COSA TI OFFRE IL MERCATO IMMOBILIARE OGGI ? UN OCCASIONE UNICA !! Spazio polifunzionale di pregio in posizione strategica, ideale per ristorazione, retail o uffici. Nel dinamico panorama immobiliare del Lago di Garda, capita di rado di imbattersi in uno spazio tanto unico quanto versatile. A Riva del Garda, a pochi passi dal centro storico e affacciato su una delle zone più frequentate della città, proponiamo in locazione un immobile di 290 mq distribuiti su due livelli, capace di trasformarsi in base alla tua visione imprenditoriale. Il piano terra accoglie con un ingresso diretto su strada e uno spazio funzionale, già predisposto per un’area cucina o reception. Al piano superiore, un’ampia sala open space inonda di luce naturale l’ambiente, perfetta per attività di coworking, showroom, studi professionali, concept store o – perché no – un elegante bistrot o ristorante contemporaneo. Caratteristiche tecniche che fanno la differenza: Servizi igienici su entrambi i livelli Impianto di climatizzazione caldo/freddo di ULTIMISSA GENERAZIONE COLLEGATO A IMPIANTO FOTOVOLTAICO Montacarichi interno Ottima visibilità e accessibilità con comodi parcheggi nelle immediate vicinanze Una cornice architettonica di grande impatto, pensata per valorizzare qualsiasi progetto commerciale o professionale. L’ultima attività ospitata? Un locale di ristorazione, a testimonianza del potenziale concreto di questa location. L’immobile è subito disponibile con contratto di locazione commerciale. Non lasciarti sfuggire questa opportunità per dare forma alle tue idee nel cuore pulsante di Riva del Garda. Contattaci oggi stesso: Intermediamo Italia – Via S. Caterina 8/A – Arco (TN) info@intermediamoitalia.it 0464 554431 WA 349/8726905

Altre caratteristiche

Anno Costruzione2019
Locali2
Bagni7
Totale piani2
RiscaldamentoAutonomo
PianoSu più livelli