Vendita Commerciale (Ufficio)
                        
                            
                            
                        
                    
                LUMINOSO UFFICIO DI 130 MQ IN VENDITA
Rif. 1527Descrizione
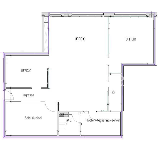
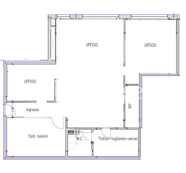
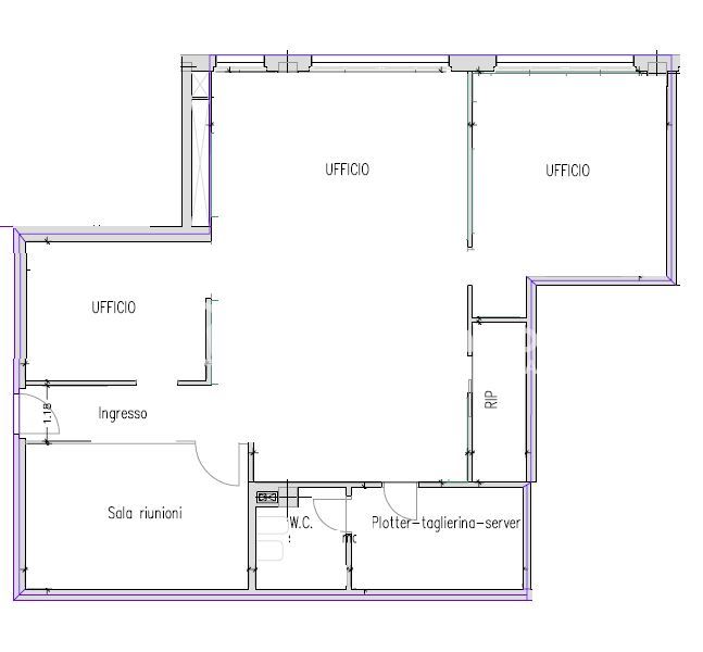
Ad Arco proponiamo in vendita un ufficio di 130 mq commerciali, posto al terzo e ultimo piano di un edificio servito da ascensore. L'immobile, ben distribuito e funzionale, è perfetto per accogliere diverse attività professionali.
Lo spazio si compone di due uffici separati, una spaziosa sala riunioni, un’area open space pensata per ospitare più postazioni di lavoro, due pratici ripostigli/zona server e un servizio igienico. A disposizione numerosi posti auto condominiali. 
Ogni ambiente è studiato per offrire comfort e massimizzare la produttività.
L’ufficio è dotato di un moderno sistema di riscaldamento e raffrescamento centralizzato, con contabilizzatori di calore e ventilconvettori, che garantisce un clima ideale in ogni stagione e una gestione efficiente dei consumi.
Attualmente l'immobile è locato con un contratto commerciale 6+6 da ottobre 2022 CON OTTIMA RENDITA E GARANZIA FIDEIUSSORIA, rappresentando così una soluzione perfetta per chi desidera un investimento a reddito immediato, sicuro e senza pensieri. 
Per maggiori informazioni chiamaci al numero 0464/554431 inviaci una mail a info@intermediamoitalia.it oppure vienici a trovare in ufficio vendite Intermediamo Italia Via S.Caterina 8/A Arco (TN)
Le immagini presenti in questo materiale promozionale sono utilizzate esclusivamente a scopo illustrativo e non costituiscono elemento contrattuale.
                        Altre caratteristiche
Anno Costruzione2010
                            Locali4
                                                        Bagni1
                            CucinaNon presente
                            Totale piani3
                            RiscaldamentoCentralizzato
                            Piano3°
                                                                                    AscensoreSI